Konstruksjon
Norfo TAL luke er basert på retningslinjer i «Veiledning til forskrift om behandling av brannfarlig vare» (1996) som angir at avlastingsflatens massevekt bør være mindre enn 12 kg/m2 og ha en styrke på mindre enn 2,0 kPa. Lukebladet består av en kjerne av 30 mm styrofoam med aluminiumsplater på begge sider. Rundt lukebladet sitter en profilert grå tetningslist i kunststoff. Denne pakningen presser mot karmen og bidrar til å holde lukebladet på plass. På en side, fortrinnsvis i toppen, er pakningen festet med en klemlist til karmen slik at pakningen virker som et hengsel. Avhengig av eksplosjonens styrke og intensitet kan dette bidra til at luken ikke slynges avsted. Lukekarmen er utført av stålprofiler og er isolert med mineralull. Karmen har justerbare karmhylser for enkel montering med skruer.
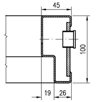
Karm profil, trykkavlastingsluke Norfo TAL

Sikring mot innbrudd

Da luken må kunne åpnes lett, vil den også være et svakt punkt for uønsket inntrenging. I de tilfeller hvor risiko for innbrudd kan være aktuelt, kan det som et tillegg leveres en rist som er boltet til karmen på innsiden av luken. Standardutformingen av denne vil være overensstemmende med NVE’s krav til gitter: Flattstål 60×6 mm med C/C 80 mm. Annen utforming av innbruddssikring kan tilvirkes etter kundens spesifikasjoner.
Overflatebehandling
Som standard leveres lukebladet av aluminium ubehandlet. Karm leveres lakkert hvit. Andre farger kan leveres som tillegg. Karm kan også leveres i rustfritt eller syrefast stål.
Dimensjon
Lukene kan leveres etter vanlige modulmål. For eksempel vil dimensjon 10x12M vil ha utvendig karmmål 990×1190 mm og lysåpning 900×1100 mm.
Forespørsler
Ved forespørsler og bestilling bes oppgitt:
- Dimensjon (modulmål BxH)
Eventuelt tilleggsutstyr
Det tas forbehold om konstruksjonsendringer.